AZAY-SUR-CHER (37)




2022 (PC)
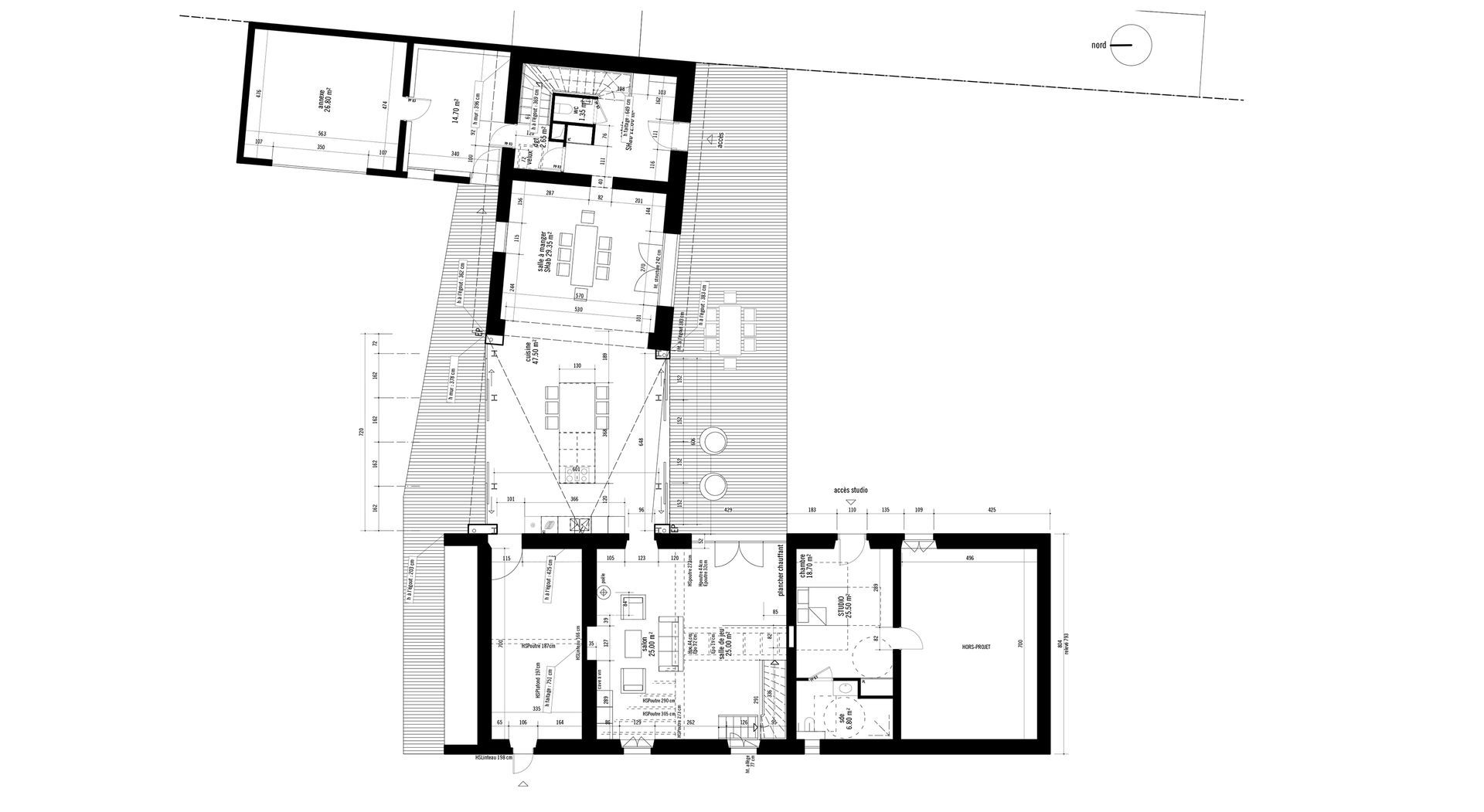
MAISON
Restauration et extension d'une maison
37270 AZAY-SUR-CHER_lieu
Extension, restauration et réaménagement d'une maison_programme
Privée_maîtrise d’ouvrage
CAPLA, architecte du patrimoine_maîtrise d’œuvre
Métal_matériaux
- m2_surface
- euros h.t._coût de l’opération
CAPLA_images
DESCRIPTION
-
